• <ze class="sibob"></ze>





  • 麻豆MV免费观看,麻豆三级视频,国产精品麻豆传媒,麻豆APP在线观看入口

    中金上海大廈(中國黃金大廈)
    5.50元/m2/天起

    浦東世博濱江

    浦 東-博成路568號

    13號線-世博大道

    房源專屬顧問為您服務

    楊亦晗Cassie

    13167276699

    在租戶型

    In Tenant Type

    • 照 片麵 積單 價總 價詳情

    樓盤照片

    Building photos



    大廈簡介

    Building introduction

    • 類型

      寫字樓

    • 單層麵積

      1700平

    • 總樓層

      17

    • 得房率

      70%

    • 竣工年月

      2019

    • 物業公司

      中國黃金

    • 物業費

      36元/平米•月

    • 層高

      淨高2.9米

    • 空調類型

      VAV中央空調係統

    • 電梯

      客梯4部,貨梯1部

    • 車位

      地下150個

    • 是否涉外

    中金上海大廈由中國黃金集團有限公司投資建設的中國黃金大廈(又名中金上海大廈)位於上海市浦東新區世博園B片區央企總部聚居區博成路568號,距離中華藝術宮約1公裏左右,西鄰長清北路和世博文化公園,北臨博成路和世博集團大廈,東臨中國商飛大廈,南鄰博航路和中化大廈,上海軌道交通13號地鐵世博大道站1號口設在大廈內的A棟。
     

    中金上海大廈

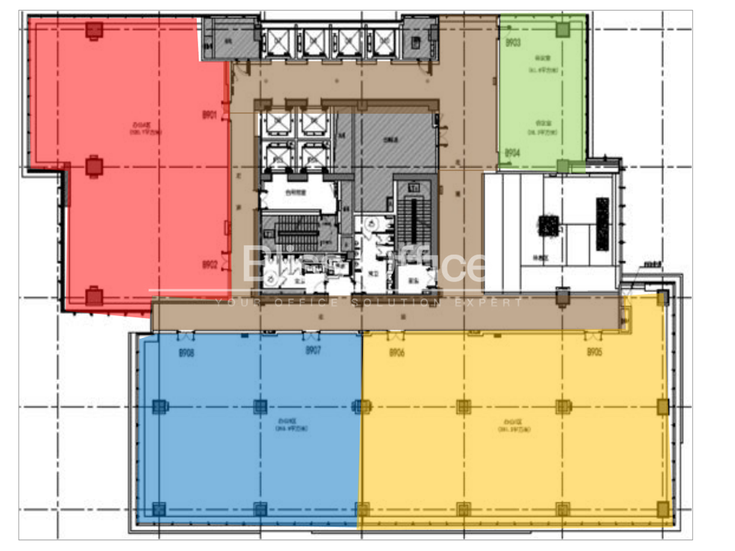
    中金上海大廈分A、B兩棟,用地8665.6平,建築麵積67361.2平(其中地上麵積43330平,地下24031.2平)容積率5,綠地麵積1386平,綠地率16%,道路廣場麵積1600平,是集商業、辦公、餐飲、文化娛樂、智能化為一體的綜合性商廈。A座(北樓)共十層,高度50米,單層麵積1700平。其中3~9層為商務辦公,層高4.4米,10樓為大會議室和多媒體會議室,層高6米。


    目前此棟對外出租麵積65平~1700平之間,大小可分割。
    B座共14層,高度70米,單層建築麵積1700~1800平,3~14層為商務辦公,層高4.4米,可分割,盧浦大橋行駛車輛可直接看到此大樓。

    租金價格:辦公:5.5元~8元/平/天左右,物業費35元

    商業:6.0-10元/平/天左右,物業費45元 

    公共交通

    Public transit

    中金上海大廈(中國黃金大廈)

    浦 東浦東世博濱江博成路568號

    大廈圖片

    直接安排看房Bliss Office

    How To Commissin Bliss Office

    網站地圖