陸家嘴
浦 東-即墨路
4號線-浦東大道、14號線-浦東南路


In Tenant Type
Building photos
Building introduction
寫字樓
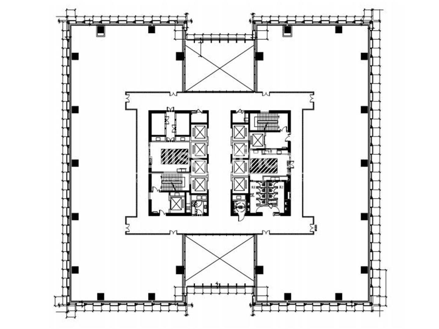
2400平
18層
70%
2017年
中信泰富
40
3米
VAV中央空調
8客梯,2貨梯
是

上海瑞明大廈(Ruiming Tower)位於陸家嘴銀城路117號
陸家嘴核心區域,坐擁一線江景,距東方明珠非常近,步行到地鐵4號線浦東大道站、地鐵2號線東昌路站、地鐵14號線的浦東南路站都比較近。
上海瑞明大廈也是一家公司本來買過了打算做總部用的,但是後來計劃有變,改成對外出租了,所以產證上就沒有做小分割,目前瑞明大廈經過一段時間的溝通,也推出了300多方的小戶型,整層2400方。
目前上海瑞明大廈業主方對外租金報價7-9元/平/天之間,物業費是50元/平/月。
瑞明大廈周邊商業配套很完善,五星級酒店:浦東文華東方、浦東凱賓斯基
周邊商業:尚悅灣、尚悅街、船廠1862
其他:大都會遊艇俱樂部、陸家嘴中心綠地、保利劇院
Public transit
浦 東陸家嘴即墨路

How To Commissin Bliss Office
