• <ze class="sibob"></ze>





  • 麻豆MV免费观看,麻豆三级视频,国产精品麻豆传媒,麻豆APP在线观看入口

    前灘世貿中心/前灘企業
    6.00元/m2/天起

    前灘後灘

    浦 東-濟陽路158號

    6號線-上海兒童醫學中心、8號線-東方體育中心、11號線-東方體育中心

    房源專屬顧問為您服務

    楊亦晗Cassie

    13167276699

    在租戶型

    In Tenant Type

    • 照 片麵 積單 價總 價詳情

    樓盤照片

    Building photos



    大廈簡介

    Building introduction

    • 類型

      寫字樓

    • 單層麵積

      2000平

    • 總樓層

      32層

    • 得房率

      70%

    • 竣工年月

      2016年

    • 物業公司

      貝思特物業

    • 物業費

      28.00元/㎡·月

    • 層高

      3米淨層高

    • 空調類型

      VAV中央空調係統

    • 電梯

    • 車位

    • 是否涉外

    前灘世貿中心一期商業項目定位為寫字樓配套商業,不僅配備了企業所需的銀行、便利店、餐飲等日常業態,還引進了高品質、國際化的全科診所與牙科診所、健身會所,滿足現代白領對健康及醫療的需求。此外,麻豆MV免费观看還攜手國際教育機構完成辦公樓幼兒托管中心的引進,升級了辦公樓服務配套理念,消除白領上下班接送兒童的後顧之憂,實現真正的“零步教育”可能。

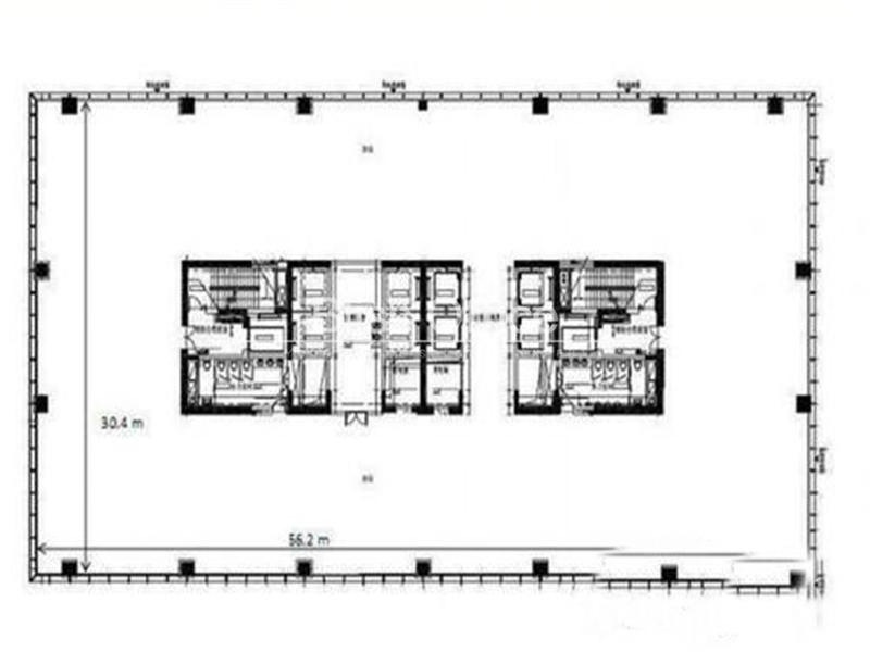
    前灘世貿中心平麵圖

    公共交通

    Public transit

    前灘世貿中心/前灘企業

    浦 東前灘後灘濟陽路158號

    大廈圖片

    直接安排看房Bliss Office

    How To Commissin Bliss Office

    網站地圖