• <ze class="sibob"></ze>





  • 麻豆MV免费观看,麻豆三级视频,国产精品麻豆传媒,麻豆APP在线观看入口

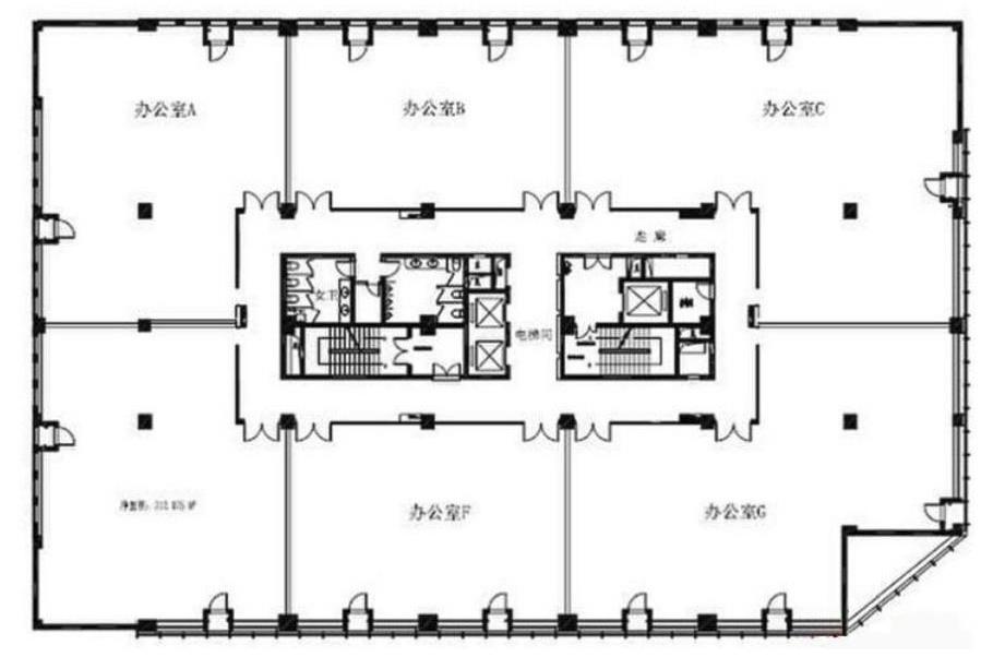
    聯峰匯628方,精準帶家具

    分享
    11.84 萬元/月
    • 單價:6.2元/㎡/天
    • 物業費:23.0元/㎡/月
    628㎡
    建築麵積
    30-80人
    容納工位
    帶裝修家具
    裝修
    • 徐 匯-徐家匯
    • 1號線-徐家匯、9號線-徐家匯、11號線-徐家匯
    • 聯峰匯大廈

    房源專屬顧問為您服務

    江帥軍Evan

    13052210023
    預約看房

    公共交通

    Public transit

    聯峰匯大廈

    徐 匯徐家匯廣元西路315號

    網站地圖