400-8090-660永豐國際廣場整層1668平,土豪客戶300萬豪裝,高配行政衛生間、廚房一應俱全
1668㎡
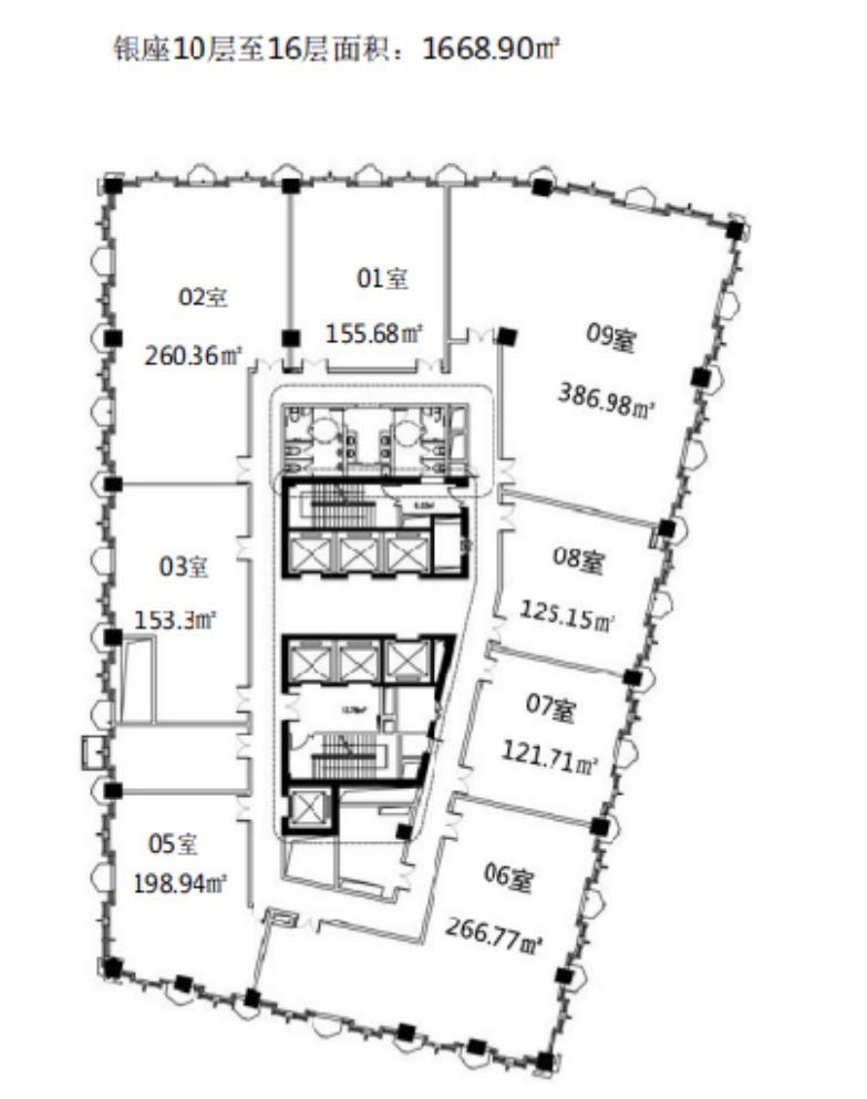
建築麵積
100-300人
容納工位
帶裝修家具
裝修
徐 匯-徐家匯
1號線-徐家匯、9號線-徐家匯、11號線-徐家匯、7號線-肇嘉浜路
永豐國際廣場
基本信息
- 使用率約 78%
- 可否注冊 是
- 免租時間 麵議
- 最早可租 隨時
- 最短租期 2年
- 裝修備注 精裝修配家具網絡
- 看房時間 隨時
永豐國際廣場
- 總樓層 26層
- 單層麵積 1700平方米
- 竣工年月 2016年
- 物業公司 廣電物業
- 空調類型 VAV中央空調係統
網站地圖