• <ze class="sibob"></ze>





  • 麻豆MV免费观看,麻豆三级视频,国产精品麻豆传媒,麻豆APP在线观看入口

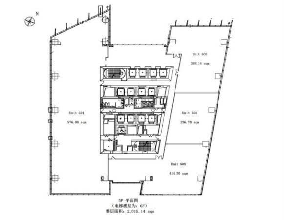
    東亞銀行大廈575方,精裝修,正對電梯廳

    分享
    19.24 萬元/月
    • 單價:11.0元/㎡/天
    • 物業費:36.5元/㎡/月
    575㎡
    建築麵積
    80人
    容納工位
    帶裝修家具
    裝修
    • 浦 東-陸家嘴
    • 2號線-陸家嘴、14號線-陸家嘴
    • 東亞銀行金融大廈

    房源專屬顧問為您服務

    楊亦晗Cassie

    13167276699
    預約看房

    公共交通

    Public transit

    東亞銀行金融大廈

    浦 東陸家嘴花園石橋路66號

    網站地圖