400-8090-660萬象城C座精裝修,帶部分家具,139平稀缺小麵積景觀房
139㎡
建築麵積
12-15人
容納工位
帶裝修家具
裝修
閔 行 -龍柏
10號線-龍柏新村、10號線-紫藤路
萬象城
基本信息
- 使用率約 68%
- 可否注冊 是
- 免租時間 3個月
- 最早可租 隨時
- 最短租期 2年
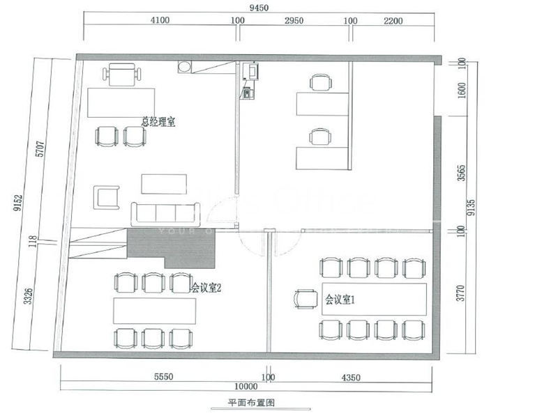
- 裝修備注 上家遺留裝修,2個老板間,1個會議室,1個經理室,logo牆,4個工位
- 看房時間 隨時
萬象城
- 總樓層 10層
- 單層麵積 2200平
- 竣工年月 2015年7月
- 物業公司 第一太平戴維斯物業
- 空調類型 VAV中央空調係統
網站地圖